ERA PORT GÜVENCESİYLE BALIKESİR SÜTLÜCE 225,81m² ARSA
 Portföy No: 14741
ERA PORT

ERA PORT GÜVENCESİYLE BALIKESİR SÜTLÜCE 225,81m² ARSA - 14741

BALIKESİR / ALTIEYLÜL / SÜTLÜCE M

Satılık 5.500.000 ₺
EİDS Logo

AÇIKLAMA

ERA PORT GAYRİMENKUL

BALIKESİR ALTIEYLÜL SÜTLÜCE MAHALLESİ'NDE 225,81 M² ARSA

Balıkesir’in hızla gelişen bölgelerinden biri olan Altıeylül – Sütlüce Mahallesi'nde yer alan 225,81 m² büyüklüğündeki 3 kat imarlı arsamız, yatırımcılar için kaçırılmayacak bir fırsat sunuyor.

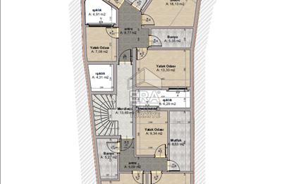
Bu arsa için daha önce mimari taslak çalışması yapılmış olup; 2+1 dairelerden oluşan toplam 6 dairelik bir proje alanı planlanmıştır.

Proje görselleri ilan fotoğraflarında yer almaktadır.

Yeni projeler ve altyapı yatırımlarıyla birlikte değer kazanmaya devam eden bu bölge, hem kısa vadede inşaat geliştiricileri için hem de uzun vadeli arsa yatırımcıları için yüksek potansiyele sahiptir.

 Öne Çıkan Özellikler:

Arsa Alanı: 225,81 m²

İmar Durumu: 3 Kat Konut İmarlı

Proje: 2+1 dairelerden oluşan 6 daire

Gelişen Bölge: Yeni konut projeleri, yol ve altyapı yatırımları

Ulaşım ve çevre olanakları: Yakın çevrede toplu ulaşım, okul, sağlık, market vb. sosyal donatılar

 Neden Bu Arsa?

Gelişen konum: Bölge her geçen gün değer kazanıyor

Yatırım fırsatı: Hem geliştiriciye hem bireysel yatırımcıya hitap ediyor

Kısa vadede kazançlı çıkın, uzun vadede bölge potansiyeliyle büyük getiri elde edin

KURUMSAL HİZMET VE DAHA AYRINTILI BİLGİ İÇİN BİZLERLE İLETİŞİME GEÇİN.

Ofis: 0 266 502 10 00 GSM:0 537 683 32 13

Konum Türkiye , , Balıkesir , Altıeylül , Sütlüce
Tapu Durumu Kat Mülkiyeti
Portföy Kategorisi İmarlı
Fiyat 5.500.000 ₺
Metre Kare (Net) 225
Krediye Uygun Evet
Takasa Uygun Evet
İmar Durumu Konut İmarlı
Tapu Durumu Müstakil Parsel

Görüntülenme Sayısı

85

* İlana teklif verebilir, görme talebinde bulunabilir, danışman ile iletişime geçebilirsiniz.

Teklif Ver Görme Talebi Beni Arayın

MUHİT ÖZELLİKLERİ

  • Sağlık Merkezi
  • Lise
  • Ortaokul
  • İlkokul
  • Üniversite
  • Kreş
  • Anaokulu
  • Pazar Yeri
  • Sağlık Ocağı
  • Şehir Merkezi
  • Polis Merkezi
  • Eczane
  • Cami
  • Benzin İstasyonu
  • Cadde
  • Postane
  • Park
  • Banka
  • ATM
  • Otoyol

ULAŞIM ÖZELLİKLERİ

  • Otobüs Durağı
  • Minibüs

MANZARA ÖZELLİKLERİ

  • Şehir

TEKNİK ÖZELLİKLER

  • Yolu Açılmış
  • Doğalgaz
  • Su Hattı
  • Elektrik Hattı
  • Telefon
PORT - Uğur Başaran

Uğur Başaran

Danışmanın Diğer Portföyleri