Altınova Merkezi, Ana Cadde üzerinde Satılık Komple Bina
 Portföy No: 13996
ERA ANGEL

Altınova Merkezi, Ana Cadde üzerinde Satılık Komple Bina - 13996

Balıkesir / Ayvalık / Altınova

Satılık 51.000.000 ₺
515 m2
6+

AÇIKLAMA

Altınova merkezinde 3 katlı komple satılık bina....

Öne Çıkan Bina Özellikleri :

* Zemin katta 5 adet dükkan ;

- 18,80 m2 - 22,08 m2 - 37,55 m2 - 19,45 m2 - 18,90 m2 net kullanım alanlarına sahip,

- Toplamda 117 m2 dükkan kullanım alanı,

- Her dükkanda çekme kat bulunması,

- Halen içerisinde bulunan kiracıları ile hemen getiri sağlayan,

- Birleştirilerek büyük market gibi bir alternatife kiralama şansı.

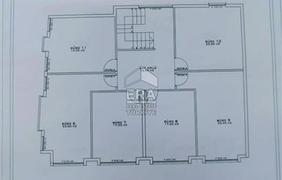
* 2 kat ve her katta 6 ofis olmak üzere toplam 12 adet ofis,

- 1 katta 19,90 m2 - 23,80 m2 - 17,00 m2 - 17,00 m2 - 22,55 m2 - 22,80 m2 halinde olmak üzere bir katta 123 m2 kullanım,

- 2 kat toplamında 12 ayrı bölüm ve 246 m2 kullanım,

- Boş olması nedeniyle hemen kiralama şansı,

- Otel gibi farklı kullanımlara açık düzenleme avantajı,

* Bölge ortalama kira tutarları ile bölge ortalamasının çok altında bir amortisman süresine sahip komple bina satılıktır.

Konum Türkiye , , Balıkesir , Ayvalık , Altınova
Tapu Durumu Kat Mülkiyeti
Portföy Kategorisi Komple Bina
Fiyat 51.000.000 ₺
Metre Kare (Brüt) 515
Metre Kare (Net) 365
Oda Sayısı 6+
Bina Yaşı 34
Kat Sayısı 3
Isıtma Klima
Kullanım Durumu Boş
Krediye Uygun Evet
Takasa Uygun Evet
Tapu Durumu Müstakil Parsel
Bir Kattaki Daire 6

Görüntülenme Sayısı

251

* İlana teklif verebilir, görme talebinde bulunabilir, danışman ile iletişime geçebilirsiniz.

Teklif Ver Görme Talebi Beni Arayın

DIŞ ÖZELLİKLER

  • Su Deposu
  • Açık Otopark
  • Dış Cephe:   Mantolama

CEPHE ÖZELLİKLERİ

  • Kuzey
  • Güney

MUHİT ÖZELLİKLERİ

  • Sağlık Merkezi
  • Ortaokul
  • İlkokul
  • Pazar Yeri
  • Hastane
  • Sağlık Ocağı
  • Şehir Merkezi
  • Polis Merkezi
  • Eczane
  • Cami
  • Benzin İstasyonu
  • Cadde
  • Deniz
  • Banka
  • ATM
  • Market
  • Sahil

ULAŞIM ÖZELLİKLERİ

  • Anayol

MANZARA ÖZELLİKLERİ

  • Şehir

TEKNİK ÖZELLİKLER

  • Uydu
  • WIFI
ANGEL - Levent Ayhan

Levent Ayhan

Danışmanın Diğer Portföyleri